Al Jubail
Al Jubail
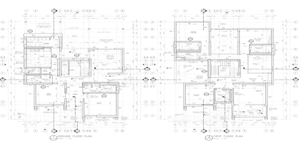
Private Villas Compound at Mardumah District
COUNTRY:
KSA
CLIENT:
AAW Egypt
AREA:
600 Sq. meter each villa type
DURATION:
8 months
OUR SERVICES:
BIM Management - Full modeling and coordination all trades - Full design packages
Private Villas Compound at Mardumah District
KSA
AAW Egypt
600 Sq. meter each villa type
8 months
BIM Management - Full modeling and coordination all trades - Full design packages
